老干部活动中心,南宁 / 时境建筑
丰富的室内与室外的空间体验。
时境建筑的老干部活动中心将竹木建筑形制转译为双层幕墙的现代空间

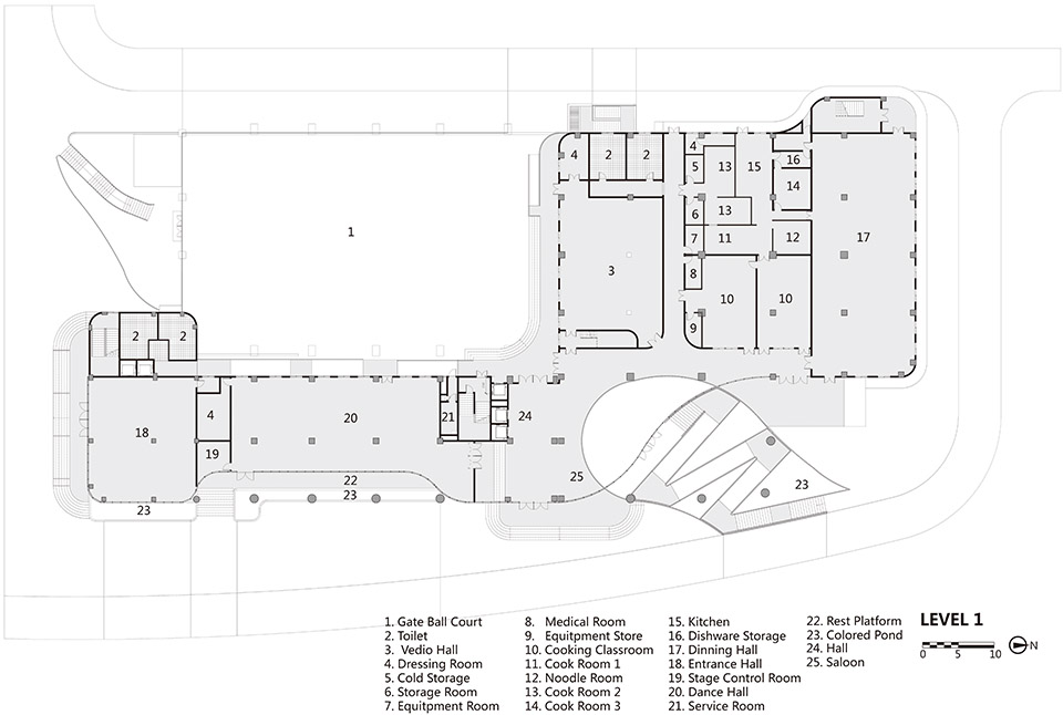
时境建筑的广西老干部活动中心项目结合地貌的变化,尝试将本地传统的竹木结构建筑原型通过当代技术转译为现代空间,变化的遮阳板肌理暗合了本土手工印象,创造了丰富的室内与室外的空间体验。

建筑的理念根源于对项目背后的人文内涵的思考:建筑师希望要创造一个适于退休人员的空间,而这些退休者的青年时期大多是在文革中度过的。尽管历史对文革的评价是负面的,但文革时期形成的“集体式生活”多少还是为那个时代留下了些温暖的记忆。退休者对于命运多舛的时代的归属感是建筑师对于现代生活的孤立与冷漠做出批评的立足点。
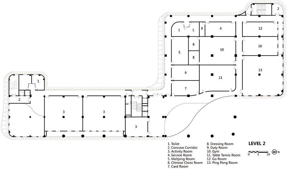
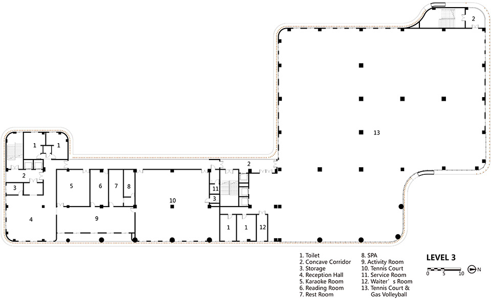
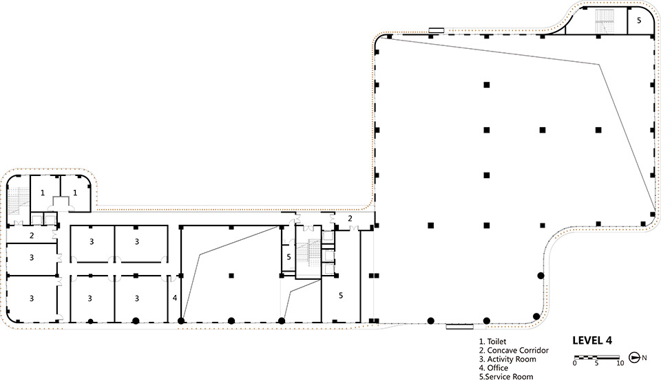
我们希望通过这个项目唤起我们的父辈及下一代的归宿感。农业生产是那个时代“集体式生活”的标志,自然地貌便是这一代人集体记忆的背景。我们通过对建筑空间在“地面”层面上的叠加,再现了自然地貌:在城市层面上,由于本项目地处城市扩张的边界,位于较低的洼地地形,面邻一个保留的绿化高地,我们在建筑手法上引入一系列上下错开的水平楼板来使这两种极端的地貌形成空间上的对话;在建筑尺度,我们转译了这种拓扑关系为一种多层楼板的空间类型,例如地下室空间转折到首层入口层,接着又垂直延伸到二层空间,并不断交错向上;在细部层面,我们使用了木纹铝方通遮阳板系统将丰富的地景引入到室内,是对本土的竹材结构建筑形制所做出的回应。









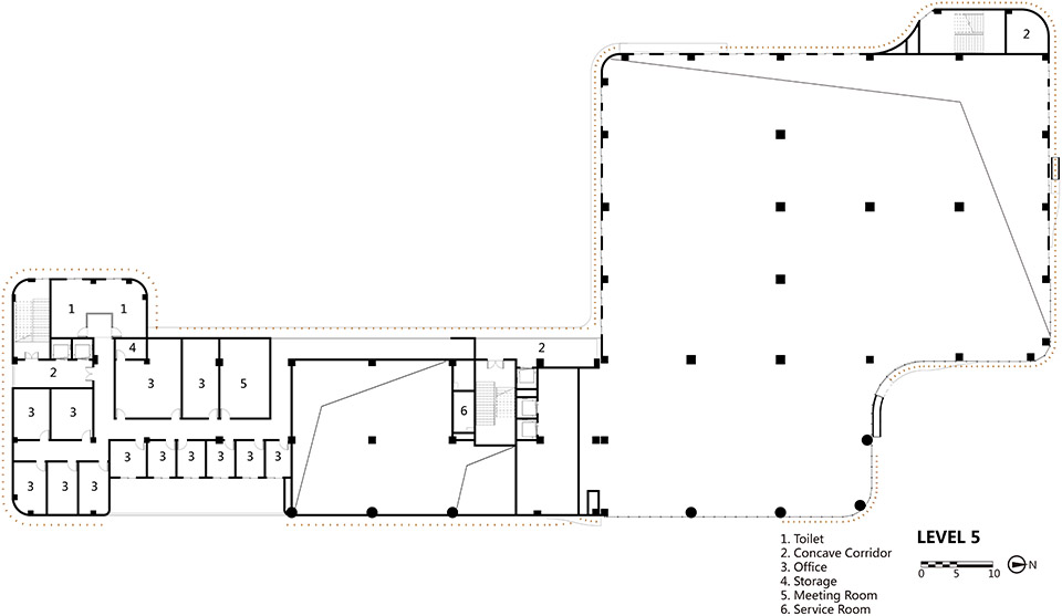
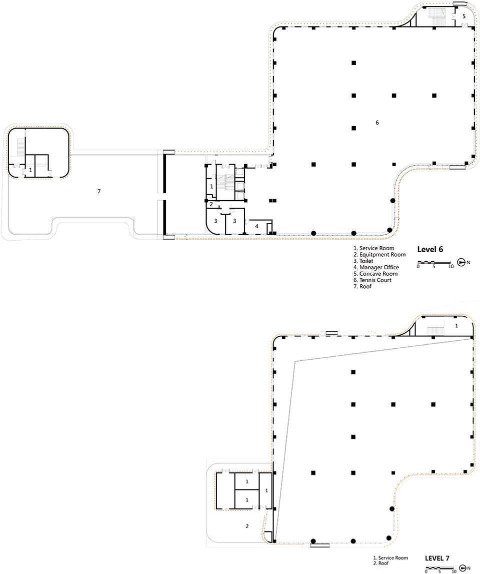
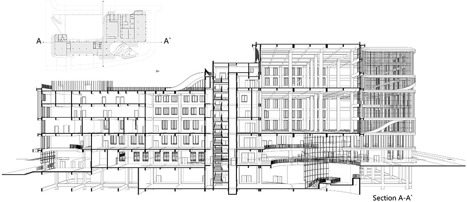
设计图














