紧跟绿色建筑潮流之节能竹屋!
该项目在中国可持续发展新政策的背景下,在宝溪设计能源效率实验住宅(龙泉国际竹业公司)。

分析图分析图
利用太阳能,水,植物,风能和天然材料等易获得的天然元素来最大限度地减少碳排放,?;ぷ匀簧⒄沟那绷Γ泄颂峁└弑曜嫉拇葱滦妥≌?。

有关房子设计的主题如下:
竹子是宝溪地区非常特殊的天然元素,将它用作住宅和室内的结构元素;

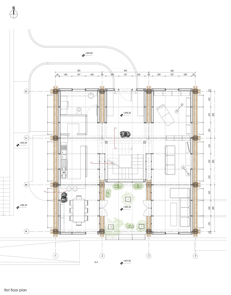
首层平面首层平面
地下水冷却。地下水是当地引人注目的自然资源。以简易方式使用地下水来创建一个冷却系统,另外在没有生活用水的地方,可用地下水冲厕所;

风水----这个最重要的古老的中国传统概念被应用于房屋设计;

剖面剖面
模块化和产业化。在新型工业化竹建筑系统中创造??榛?。

对于房子的结构,我们探索了以竹子为建筑材料的新方法。对我们而言,可持续发展不仅仅是使用竹子等天然材料,而是设计适当的施工方案:

设计干式连接,不要通过穿孔削弱竹子,也不要用混凝土填充竹子,还可以根据需要更换竹杆;

分析图分析图
设计铝连接,轻便易于组装,以便当地工人完成施工;
使用相同长度的竹杆,实现标准化和最佳质量控制;

使用相同长度的竹秆,实现标准化和更好的质量控制;
结合竹子(“植物钢材”)和钢铁建立工业化建设体系;

分析图分析图
- 应用精确的几何(黄金比例)来实现零件标准化,质量控制最优化以及审美和谐化。

立面
住宅使用地下水是最诱人并且可持续的解决方案,利用地热热泵,既能制冷又能加热。与普通的冷却、加热系统相比,其效率非常高,至少提高了25%的效率,甚至更多。无论什么季节,无论地表温度如何,地下温度都是稳定的。通过利用这种更加恒定、均匀的温度,我们可以让住宅加热或制冷。据估计,这些系统比传统冷水机组使用的能量少15%。
所有的住宅将尽可能实现??榛?,来创造一个工业化的生产。





